Villa a schiera in vendita

Alba, Corso Bra
€ 280.000
Prezzo aggiornato
5 locali 5 locali
168 Mq 168 Mq
2 bagni 2 bagni

Villa a schiera in vendita

Alba, Corso Bra

Descrizione annuncio

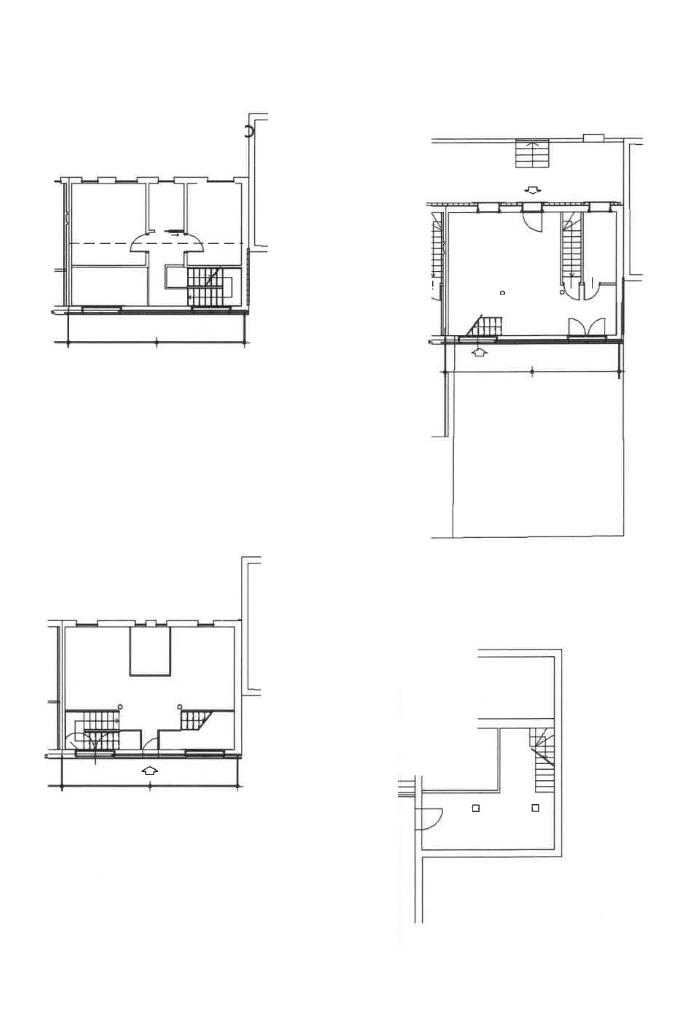
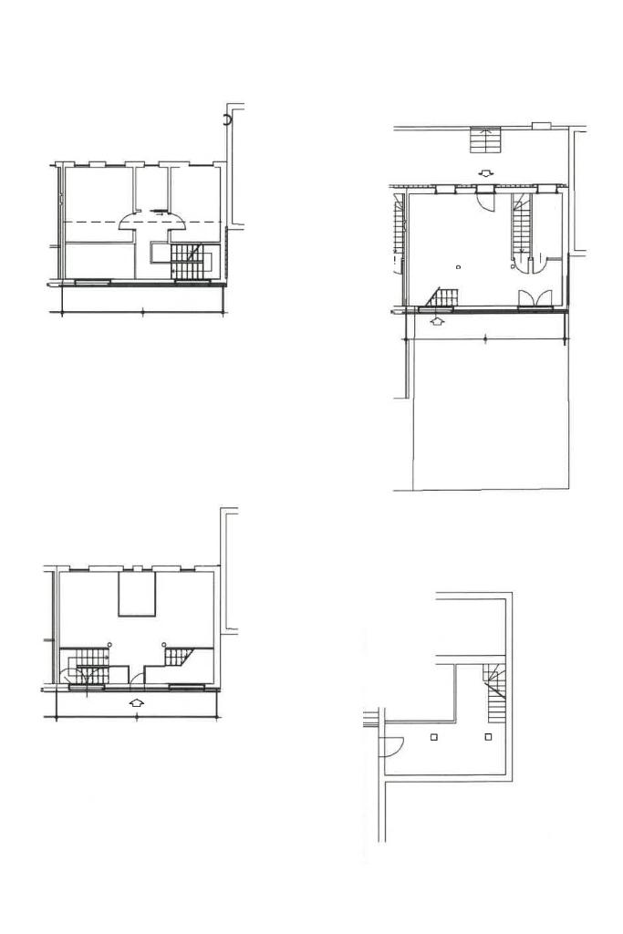
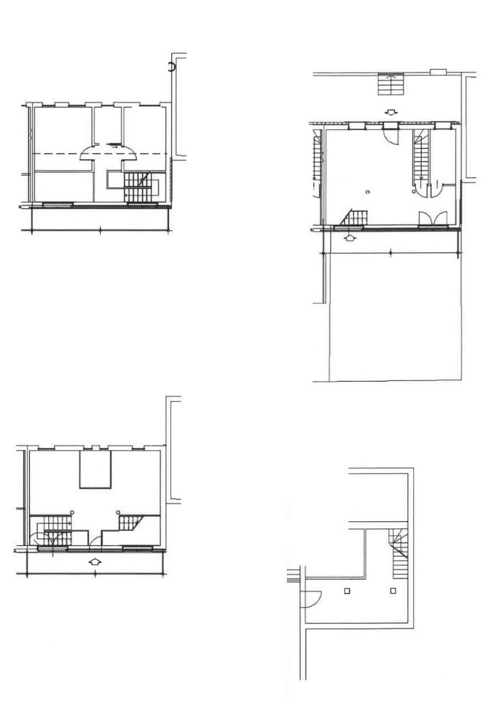
ALBA - In Corso Bra, a pochi passi da tutti i principali servizi, villa a schiera di 168 mq, ideale per chi cerca una soluzione spaziosa, comoda e ben posizionata. L'immobile si sviluppa su due livelli, con un layout funzionale e ben distribuito. Al piano terra troviamo un ampio e luminoso soggiorno open space, in cui cucina e salotto sono uniti in un unico ambiente, da qui si accede direttamente al giardino privato. Al primo piano si trova un secondo soggiorno, un'ulteriore zona living che può essere adibita a studio o zona relax, offrendo maggiore spazio per soddisfare diverse esigenze. Proseguendo al secondo piano, si sviluppa la zona notte, composta da due camere da letto ben dimensionate e un bagno. Completano la proprietà il locale cantina al piano interrato e un posto auto coperto. Inoltre, è possibile acquistare un secondo posto auto coperto al prezzo di 15.000 euro. Il riscaldamento è autonomo, garantendo un'ottima efficienza energetica, mentre le spese condominiali sono contenute. La casa viene venduta già comprensiva di arredo.

Mostra tutto

Nelle vicinanze

Trasporto pubblico Trasporto pubblico
Mussotto
Mussotto
450 m
Alba
Alba
2,1 Km
Alba (Mussotto-stazione FS)
Alba (Mussotto-stazione FS)
360 m
Mussotto (bv. Guarene)
Mussotto (bv. Guarene)
730 m
Ricariche auto elettriche Ricariche auto elettriche
Rivetto Suites
2,0 Km
SEMM Alba Beausoleil
2,3 Km
Distributore Egea
2,7 Km
Scuole Scuole
Scuole
730 m
Scuola Statale d'Infanzia Via Balbo
2,4 Km
Istituto Govone
2,4 Km
Scuola Michele Coppino
2,7 Km
Farmacia Farmacia
Farmacia
730 m
Farmacia Mussotto
960 m
Parafarmacia Conad
2,0 Km
Antica Farmacia
2,2 Km
Farmacia Duomo
2,2 Km
Ospedali Ospedali
Ospedale San Lazzaro
2,0 Km
Supermercati Supermercati
Conad
2,0 Km
Alla Dispensa del Convento
2,3 Km
Prestofresco
2,4 Km
iN'S mercato
2,4 Km
Carrefour Market
2,4 Km
Negozi Negozi
Pasticceria Caffetteria Sucre'
710 m
Chiaro di Luna
1,9 Km
Il Forno di Borio Marco
1,9 Km
Il Forno
2,0 Km
United Colors of Benetton
2,3 Km
Bar Bar
Bar Lo Spuntino
410 m
Dream Cafè
720 m
Caffè Latino
1,9 Km
XL
1,9 Km
Good Cafè
2,0 Km
Ristoranti Ristoranti
Pizzeria Marechiaro
120 m
Osteria La Fermata
440 m
Agriturismo Cascina Abate
1,6 Km
Casa Scaparone
1,7 Km
Pizzeria La Duchessa
2,0 Km
Mostra tutto

Caratteristiche

Rif.:
60986231
Piano:
Su più livelli di 2
Totale piani:
2
Posti auto:
1
Balconi:
1
Camere da letto:
2
Mostra tutto
Prezzo Prezzo
€ 280.000
Prezzo box Prezzo box
€ 15.000
Rata mutuo Rata mutuo
€ 1.283 / mese
Proponi il tuo prezzoProponi il tuo prezzo

Classe Energetica

B
B
B
B
B
B
B
B
B
EP globale non rinnovabile:
84.84 kW h/m² anno
EP globale rinnovabile:
8.33 kW h/m² anno
EP invernale del fabbricato:
EP estiva del fabbricato:
Riscaldamento:
Autonomo
Tipo impianto:
A pavimento
Tipo alimentazione:
Metano

Prezzo ridotto di €1 (6%%)

Ti interessa visionare l'immobile?

Fissa un appuntamento  Fissa un appuntamento

Richiedi informazioni

* Questi campi sono obbligatori

Calcola il tuo mutuo

Semplice e senza impegno
Anticipo

( % )
Mutuo

( % )

pochi semplici passi

inserisci i tuoi dati
Questionario completato
Grazie per aver richiesto un appuntamento senza impegno con un nostro Consulente del Credito e Assicurativo.

Hai inserito correttamente tutti i dati necessari e a breve riceverai una e-mail con un link da convalidare per inviare i tuoi dati.
Affiliato
Studio Langhe Snc
Corso Italia, 8/D 12051 Alba (CN)

Il nostro staff


  • Enrico Garino
    Affiliato

  • Paola Bongiovanni
    Affiliata

  • Alberica Sveva Rivetti
    Collaboratrice
Corso Italia, 8/D 12051 Alba (CN)
Zona: ALBA CENTRO-CORSO LANGHE-MORETTA-SANTA ROSALIA-ALTAVILLA-TREISO
Mostra su mappa
Orari: dal lunedì al venerdì 9.00 - 12.30/ 15.00 - 19.30 sabato 9.00 - 12.30
Affiliato
Studio Langhe Snc
Corso Italia, 8/D 12051 Alba (CN)

2025 Tecnocasa Franchising S.p.A. - P. IVA 08365160152 - Via Monte Bianco 60/A 20089 Rozzano (MI). Ogni agenzia ha un proprio titolare ed è autonoma. Privacy policy | Policy utilizzo | Cookie policy