Casa indipendente in vendita

Alba, Località Altavilla
€ 280.000
5 locali 5 locali
205 Mq 205 Mq
1 bagno 1 bagno

Casa indipendente in vendita

Alba, Località Altavilla

Descrizione annuncio

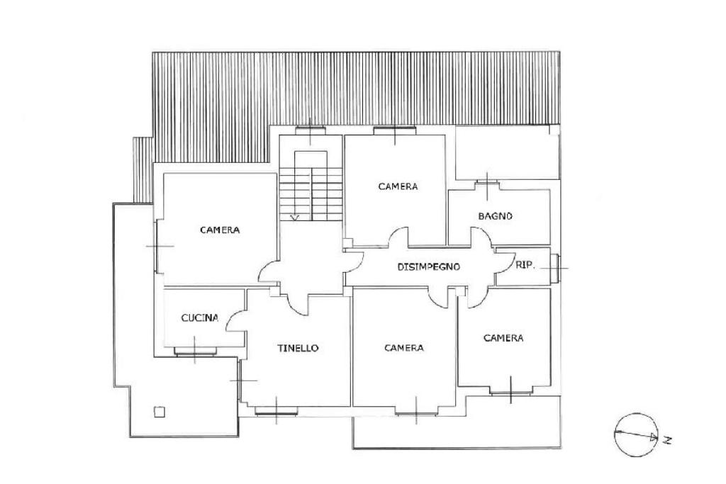
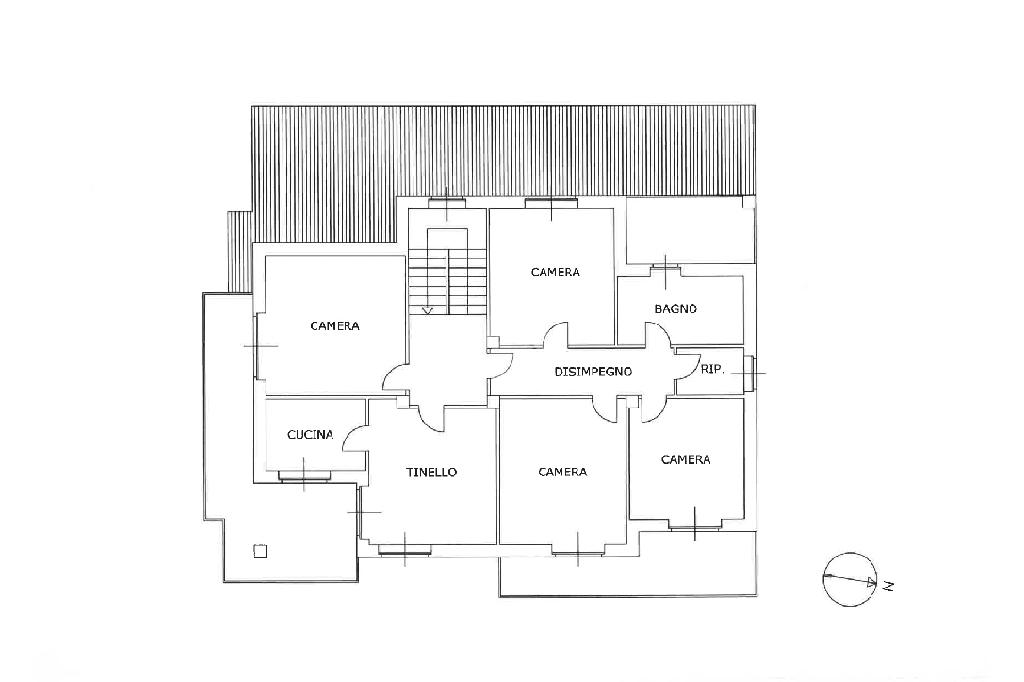
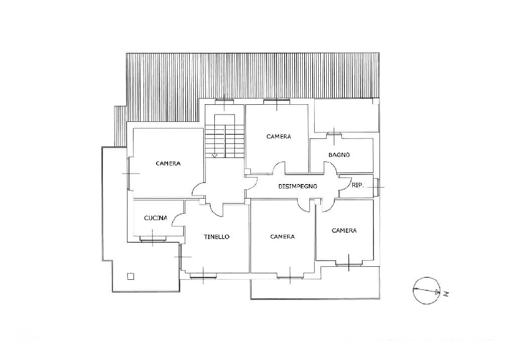
ALBA - In località Altavilla, immersa nella quiete delle colline e circondata dal verde, casa indipendente disposta su più livelli, caratterizzata da spazi generosi, ambienti ben distribuiti e una splendida vista panoramica. L'ingresso principale si apre su un disimpegno al piano terra, dove si trovano due garage spaziosi, comodi sia per il ricovero di più veicoli che come locali accessori, oltre a un bagno di servizio e la cantina. Una scala interna conduce al primo piano, cuore dell'abitazione, dove un secondo disimpegno collega i vari ambienti della zona giorno e della zona notte. La cucina e il soggiorno si trovano in stanze separate, entrambe luminose e accoglienti. La zona notte è composta da tre camere da letto di comode dimensioni, servite da un bagno finestrato e un comodo ripostiglio. Esternamente, il piano è arricchito da un balcone e da un ampio terrazzo con affaccio aperto sul paesaggio collinare, perfetto per momenti di relax all'aperto o per vivere appieno la bella stagione. Al piano superiore è presente un locale di deposito. L'immobile si presenta in buone condizioni generali e rappresenta una soluzione abitativa ideale per famiglie che desiderano vivere in un contesto tranquillo e riservato, senza rinunciare alla comodità degli spazi. Sono inoltre disponibili, con trattativa separata, terreni adibiti a vigneti adiacenti alla casa. Una proposta unica per chi cerca indipendenza, vista panoramica e contatto con la natura, restando comunque a breve distanza dai principali servizi.

Si informa che alcune immagini raffiguranti gli ambienti arredati sono state realizzate mediante intelligenza artificiale e hanno finalità esclusivamente illustrative, per mostrare un’ipotesi di ristrutturazione.

Mostra tutto

Nelle vicinanze

Trasporto pubblico Trasporto pubblico
Alba
Alba
1,9 Km
Trasporto pubblico
390 m
Alba (Stazione FS)
Alba (Stazione FS)
1,8 Km
Ricariche auto elettriche Ricariche auto elettriche
SEMM Alba Beausoleil
1,8 Km
Rivetto Suites
1,9 Km
Scuole Scuole
Scuola Michele Coppino
1,3 Km
Scuole
1,4 Km
Scuola Statale d'Infanzia Via Balbo
1,4 Km
Istituto Govone
1,5 Km
Scuola Elementare Umberto Sacco
1,8 Km
Farmacia Farmacia
Farmacia Duomo
1,6 Km
Farmacia
1,6 Km
Antica Farmacia
1,6 Km
Farmacia Degiacomi
1,9 Km
Farmacia Divin Maestro
2,5 Km
Ospedali Ospedali
Ospedale San Lazzaro
1,9 Km
Supermercati Supermercati
Alla Dispensa del Convento
1,6 Km
PrestoFresco
1,8 Km
Prestofresco
2,4 Km
iN'S mercato
2,7 Km
Carrefour Market
2,8 Km
Negozi Negozi
United Colors of Benetton
1,6 Km
Terranova
1,6 Km
Il Forno
1,8 Km
Il Forno di Borio Marco
1,9 Km
Mina Market
2,9 Km
Bar Bar
Bar
1,2 Km
Douce Maison
1,5 Km
Ape Wine Bar
1,5 Km
Bar Roma
1,5 Km
Hemingway
1,5 Km
Ristoranti Ristoranti
L'Osteria del Teatro
1,4 Km
Café Teatro
1,4 Km
Osteria Era Nuova
1,5 Km
Fra Diavolo
1,5 Km
Ventiuno.1
1,5 Km
Mostra tutto

Caratteristiche

Rif.:
61100463
Piano:
Su più livelli di 1
Totale piani:
1
Box:
2
Balconi:
1
Terrazzi:
1
Mostra tutto
Prezzo Prezzo
€ 280.000
Rata mutuo Rata mutuo
€ 1.330 / mese
Proponi il tuo prezzoProponi il tuo prezzo

Classe Energetica

G
G
G
G
G
G
G
G
G
EP globale non rinnovabile:
279.89 kW h/m² anno
EP globale rinnovabile:
3.45 kW h/m² anno
EP invernale del fabbricato:
EP estiva del fabbricato:
Riscaldamento:
Autonomo
Tipo impianto:
A radiatori
Tipo alimentazione:
Metano

Ti interessa visionare l'immobile?

Fissa un appuntamento  Fissa un appuntamento

Richiedi informazioni

Clicca su Leggi per aprire l'informativa
* Questi campi sono obbligatori

Calcola il tuo mutuo

Semplice e senza impegno
Anticipo

( % )
Mutuo

( % )

pochi semplici passi

inserisci i tuoi dati
Questionario completato
Grazie per aver richiesto un appuntamento senza impegno con un nostro Consulente del Credito e Assicurativo.

Hai inserito correttamente tutti i dati necessari e a breve riceverai una e-mail con un link da convalidare per inviare i tuoi dati.
Affiliato
Studio Langhe Snc
Corso Italia, 8/D 12051 Alba (CN)

Il nostro staff


  • Paola Bongiovanni
    Affiliata

  • Giorgia Porro
    Collaboratrice

  • Alberica Sveva Rivetti
    Collaboratrice
Corso Italia, 8/D 12051 Alba (CN)
Zona: ALBA CENTRO-CORSO LANGHE-MORETTA-SANTA ROSALIA-ALTAVILLA-TREISO
Mostra su mappa
Orari: dal lunedì al venerdì 9.00 - 12.30/ 15.00 - 19.30 sabato 9.00 - 12.30
Affiliato
Studio Langhe Snc
Corso Italia, 8/D 12051 Alba (CN)

2026 Tecnocasa Franchising S.p.A. - P. IVA 08365160152 - Via Monte Bianco 60/A 20089 Rozzano (MI). Ogni agenzia ha un proprio titolare ed è autonoma. Privacy policy | Policy utilizzo | Cookie policy