Trilocale in vendita

Alba, Via Cadorna
€ 108.000
3 locali 3 locali
79 Mq 79 Mq
1 bagno 1 bagno

Trilocale in vendita

Alba, Via Cadorna

Descrizione annuncio

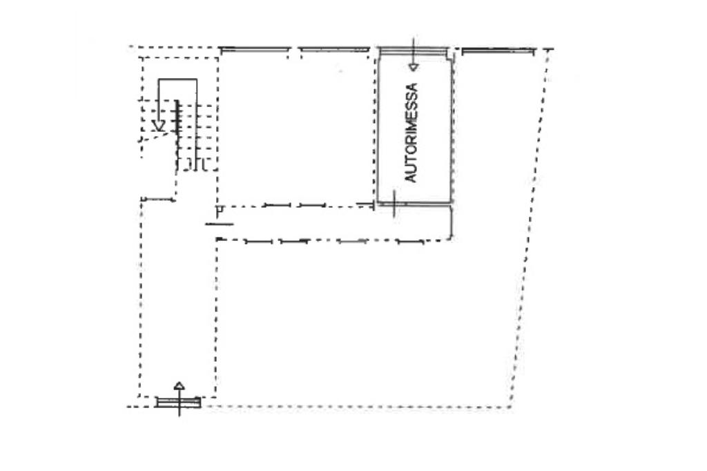
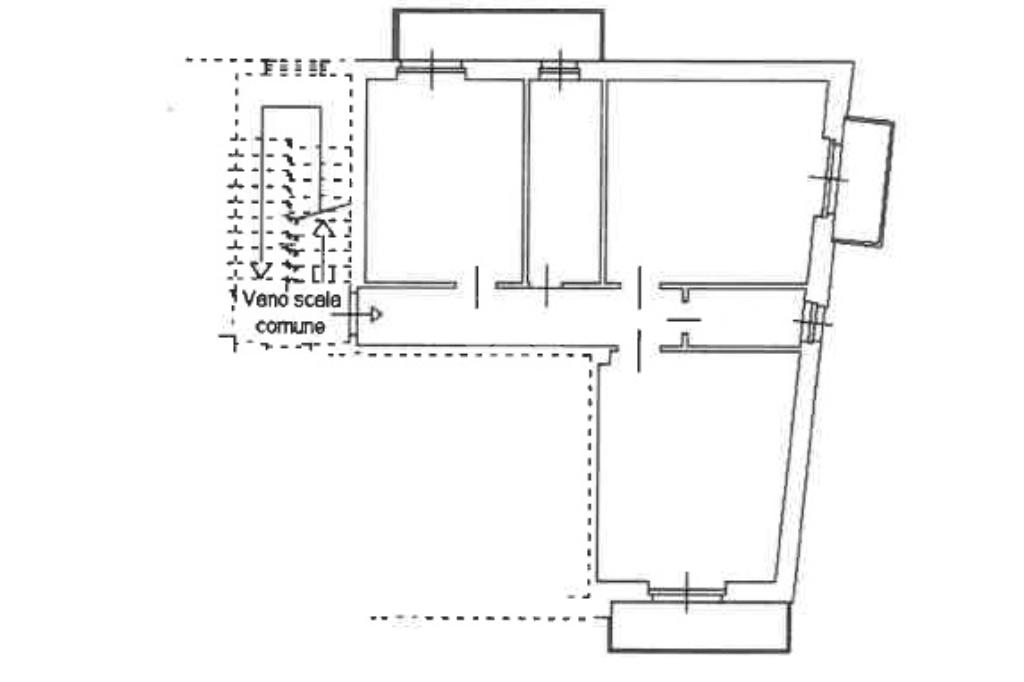
ALBA - In posizione tranquilla e soleggiata, appartamento di tre locali situato al primo piano di un condominio libero su tre lati, che garantisce un’ottima luminosità. L’abitazione si apre su un comodo ingresso con disimpegno e si compone di cucina e soggiorno in ambienti separati, una camera da letto matrimoniale, un bagno finestrato e un ripostiglio con finestra, nel quale è possibile ricavare un secondo bagno o una pratica lavanderia. A completare la proprietà troviamo tre balconi e al piano terra una cantina e un garage, ideali per chi cerca comfort e spazi aggiuntivi. Le facciate e i balconi del condominio sono stati ristrutturati, un importante intervento che valorizza ulteriormente l’immobile. L’appartamento necessita di lavori di ristrutturazione interna, un aspetto che rappresenta però un occasione per personalizzare gli ambienti e creare la casa su misura dei propri desideri. Una soluzione luminosa, funzionale e ricca di potenziale, perfetta per chi desidera investire in una casa da plasmare secondo il proprio gusto o per chi cerca un’abitazione accogliente e ben posizionata.

Si informa che alcune immagini raffiguranti gli ambienti arredati sono state realizzate mediante intelligenza artificiale e hanno finalità esclusivamente illustrative, per mostrare un’ipotesi di ristrutturazione.

Mostra tutto

Nelle vicinanze

Trasporto pubblico Trasporto pubblico
Alba
Alba
1,2 Km
Trasporto pubblico
650 m
Alba (C.so Europa/v. Aldo Moro)
Alba (C.so Europa/v. Aldo Moro)
980 m
Ricariche auto elettriche Ricariche auto elettriche
SEMM Alba Beausoleil
1,1 Km
Rivetto Suites
1,6 Km
Distributore Egea
1,7 Km
Scuole Scuole
Scuola Elementare Umberto Sacco
300 m
Scuole
760 m
Scuola Michele Coppino
1,2 Km
Istituto Govone
1,4 Km
Scuola Statale d'Infanzia Via Balbo
1,7 Km
Farmacia Farmacia
Farmacia Degiacomi
190 m
Farmacia
260 m
Farmacia Divin Maestro
870 m
Farmacia Duomo
1,6 Km
Antica Farmacia
1,6 Km
Ospedali Ospedali
Ospedale San Lazzaro
1,4 Km
Supermercati Supermercati
PrestoFresco
260 m
Prestofresco
840 m
iN'S mercato
1,0 Km
Toysland
1,0 Km
Carrefour Market
1,0 Km
Negozi Negozi
Terranova
1,2 Km
United Colors of Benetton
1,3 Km
Negozi
1,3 Km
Il Forno
1,7 Km
Il Forno di Borio Marco
1,7 Km
Bar Bar
Bar Roma
1,1 Km
Roberto Sarotto
1,2 Km
100 Vini caffé la brasilera
1,2 Km
Rojto caffè
1,2 Km
Caffetteria Maestra
1,3 Km
Ristoranti Ristoranti
Boia Fauss Pensavo Peggio
280 m
Osteria Gusto
1,0 Km
Enoclub
1,1 Km
L'Osteria dell'Arco
1,1 Km
Ristorante Savona
1,2 Km
Mostra tutto

Caratteristiche

Rif.:
61136092
Piano:
1 di 3 (Piano medio)
Box:
1
Balconi:
3
Camere da letto:
1
Arredamento:
Assente
Mostra tutto
Prezzo Prezzo
€ 108.000
Rata mutuo Rata mutuo
€ 513 / mese
Spese annue Spese annue
€ 1.800
Proponi il tuo prezzoProponi il tuo prezzo

Altre caratteristiche

Classe Energetica

E
E
E
E
E
E
E
E
E
EP globale non rinnovabile:
154.58 kW h/m² anno
EP globale rinnovabile:
13.80 kW h/m² anno
EP invernale del fabbricato:
EP estiva del fabbricato:
Riscaldamento:
Centralizzato
Tipo impianto:
A radiatori
Tipo alimentazione:
Metano

Ti interessa visionare l'immobile?

Fissa un appuntamento  Fissa un appuntamento

Richiedi informazioni

Clicca su Leggi per aprire l'informativa
* Questi campi sono obbligatori

Calcola il tuo mutuo

Semplice e senza impegno
Anticipo

( % )
Mutuo

( % )

pochi semplici passi

inserisci i tuoi dati
Questionario completato
Grazie per aver richiesto un appuntamento senza impegno con un nostro Consulente del Credito e Assicurativo.

Hai inserito correttamente tutti i dati necessari e a breve riceverai una e-mail con un link da convalidare per inviare i tuoi dati.
Affiliato
Studio Langhe Snc
Corso Italia, 8/D 12051 Alba (CN)

Il nostro staff


  • Paola Bongiovanni
    Affiliata

  • Giorgia Porro
    Collaboratrice

  • Alberica Sveva Rivetti
    Collaboratrice
Corso Italia, 8/D 12051 Alba (CN)
Zona: ALBA CENTRO-CORSO LANGHE-MORETTA-SANTA ROSALIA-ALTAVILLA-TREISO
Mostra su mappa
Orari: dal lunedì al venerdì 9.00 - 12.30/ 15.00 - 19.30 sabato 9.00 - 12.30
Affiliato
Studio Langhe Snc
Corso Italia, 8/D 12051 Alba (CN)

2026 Tecnocasa Franchising S.p.A. - P. IVA 08365160152 - Via Monte Bianco 60/A 20089 Rozzano (MI). Ogni agenzia ha un proprio titolare ed è autonoma. Privacy policy | Policy utilizzo | Cookie policy